Services

At Rogers Design Group, we take a personalized approach to our design, ensuring every detail reflects your vision. Our process begins with an in-depth consultation to understand your style, needs, and budget. From there, we create a customized design plan, incorporating both functional and aesthetic elements to maximize your space. Once you approve the design, our team coordinates all aspects of the design, from selecting materials to overseeing construction, ensuring smooth execution from start to finish. We’re committed to keeping you informed throughout, delivering a beautifully transformed home that exceeds your expectations.

Interior Design

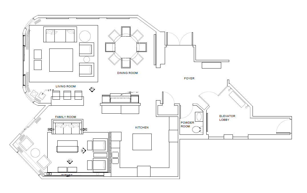
We present furniture floor plans specifically designed for your lifestyle. We choose selections of color schemes that include fabrics, finishes and wood tones. Additionally, we present all furnishings, custom built ins, window treatments, and lighting to complete the interior design of your home. 

 

New Construction

We collaborate early in the process with your architect to perfect the preliminary plans, analyzing dimensions, function, and space. Once a final plan is completed, we create detailed designs for ceilings, floors, electric and furniture layouts. At this time, we select all exterior surfaces to prepare the architect to complete their final plans. Simultaneously, your team will begin the kitchen and bath selections including cabinetry, plumbing, countertops and wall surfaces.

 

Renovation

We work closely with our general contractor to create the specifications for interior architecture of ceilings, walls, millwork, kitchen and bathroom designs.